Необычное перевоплощение. Дизайнерское решение для маленькой квартиры (ФОТО)
12 сентября 2015 12:30
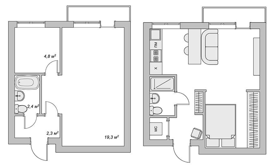
Представляем вам необычный вариант того, как можно обставить квартиру, площадь которой составляет меньше 30 квадратных метров. Для того чтобы визуально расширить пространство, дизайнеры использовали зеркала в интерьере, а также предложили выполнить обстановку мебели и аксессуаров в светлых бежевых тонах, что существенно успокаивает глаз.
Также, в этой квартире сочетались разные стили интерьера, а дизайнеры предложили крайне необычный дизайн квартиры-студии, в которой они провели зонирование на прихожую, столовую, кухню, гостиную и спальню.
Читайте также: В этом году военные получат государственные квартиры
Уважаемый посетитель, Вы зашли на сайт как незарегистрированный пользователь. Мы рекомендуем Вам зарегистрироваться либо зайти на сайт под своим именем.




